Stone Legends - Architectural Cast Stone
Stone Legends HomeHOME Cast Stone ProductsPRODUCTS Gallery of Completed Cast Stone ProjectsIDEA CENTER Stone Legends ServicesSERVICES Cast Stone Technical DocumentsTECHNICAL About Stone LegendsABOUT US
  Hello GuestLogin  |  Become Member  

Color Options

Faux Finishes

Wish List

Add Unit Add this Unit

View Current List View Wish List

Contact Us


Phone Number  800-398-1199

Fax  214-398-1293

Map  Map

EMail  Email

Send this Page to a Friend

Share this Page  Click to Share

Search by Unit ID

 



print this page
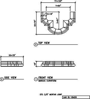
Unit ID: 18426  ~  Product Name: Marcus Curviform

Type DescriptionPrimary ViewPrimary ModifierXYZWeightEstimated
FountainSpecialShape18"120"79"n/aCall


Additional Documentation    AutoCAD 2000  Adobe PDF  JPG
Download Drawings  [dwg | pdf]
View Unit Line CAD Online  [dwf]
View Enlarged Unit Line Drawing  [gif]