Taking it to the Bank
0 Comments Published by Marketing Team June 10th, 2016 in Announcements, Architecture, Cast Stone, CSCS, Culture, Design, Galleria Pierra, Industry, Stone Legends, Uptown.A recent project had a lovely and detailed sign made from the company symbol of two deer and a tree. We received the plans in mid 2015 for Homeland Bank in Monroe, Louisiana.
The sign really captured the almost photo like quality of the original image, a moment captured as the two deer paused under a tree in a field. The texture of the grass and tree appears quite realistic, and the deer have more relief from the flat cast stone of the sky background to make them stand out.
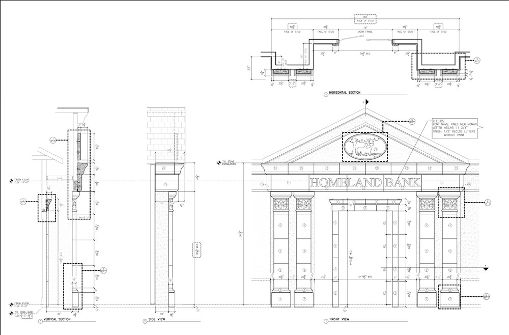
This shows the pieces that went into the complete cast stone entry with the sign. The cross section shows the stacks of flat profiles that create the Greek Revival style pediment and stone columns. There is another touch of cast stone art in the top of the columns as well as another sign with cast in lettering, note the sharpness of the decorative serifs on the lettering.
Homeland Sign Photo Side View, under construction. It contains an identical entry and sign as on the front view, seen in the drawing above.
Cast Stone Sign, Cast stone entry, stone columns, greek revival




0 Responses to “Taking it to the Bank”
Please Wait
Leave a Reply